철근콘크리트 계단의 기본 구조와 치수 계산
이번 글에서는 일반적으로 가장 많이 사용하는 계단 형태(일반계단) 를 기준으로
계단의 기본 구조와 치수 산정 방법을 정리해보겠습니다.
건축 도면에서 계단은 단순해 보이지만,
마감두께, 슬래브 두께, 층고, 단수(챌판 수) 등 다양한 요소를 반드시 계산해야
실제 골조 시공 시 오차가 발생하지 않습니다.
1️⃣ 일반계단의 기본 형태
아래 그림처럼 8단 + 8단 + 계단참(중간참) 으로 이루어진 일반형 계단입니다.

즉, 총 16개의 챌판(계단단) 으로 층과 층을 연결합니다.
2️⃣ 층고 기준 단높이(Riser) 계산
해당 계단의 층고는 2830mm 입니다.
계단 단수는 총 16개이므로:
즉, 단높이 ≈ 176.9mm 입니다.
현장에서는 계단의 한 칸을 “개꾸미”라고 부르기도 하지만
여기에서는 챌판(단높이) 으로 통일해 설명하겠습니다.
총 16개의 챌판이 모이면 한 층을 올라갈 수 있는 계단이 되는 것입니다.
3️⃣ 단면도에서 확인해야 할 핵심 요소들
아래 단면도에서 다음 사항을 반드시 체크해야 합니다.

✔ 마감 두께
테라조 타일 + 시멘트몰탈 → 총 마감 두께 = 50mm
✔ 슬래브 두께
계단 슬래브 두께는 150mm
이 두 개는 평면도 수정 시 필수 요소입니다.
4️⃣ 평면도 정리 – 마감 → 골조 기준으로 재구성
일반적으로 계단 도면은 건축 마감 기준으로 표기되어 있기 때문에
골조 시공 기준으로 쓰려면 약간의 수정이 필요합니다.
아래는 동일한 계단 평면도를
- 좌측: 건축 마감 기준
- 우측: 골조 기준(마감 두께 제거)
으로 비교한 예시입니다.

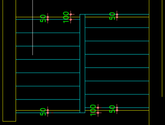
5️⃣ 골조와 마감의 차이 이해 (중요)
아래 그림을 통해 골조선(콘크리트면) 과 마감선(테라조) 의 관계를 이해해야 합니다.

- 하늘색 선 → 콘크리트 골조 기준선
- 노란색 선 → 마감이 끝난 후 실제 보이는 계단선
마감 두께가 50mm이므로
양쪽 계단을 합하면 50mm × 2 = 100mm 차이가 발생합니다.
즉,
“골조 계단참을 기준으로 오르내리는 계단 챌판의 시작점·막힘 위치는
마감 두께의 2배(100mm) 차이가 나야
마감 후 계단선이 일직선이 된다.”
이 원리를 이해해야 골조 → 건축 마감 상태가 자연스럽게 연결됩니다.
🎉 마무리
이번 글에서는 일반 계단의 기본 구조와
평면도·단면도를 통한 단높이 계산 및 골조/마감 차이를 정리했습니다.
다음 글(note02)에서는
- 계단 평면도 세부 수정
- 챌판 위치 정밀 계산
- 골조 기준선 잡는 방법
등을 이어서 설명드리겠습니다.
계단 작업은 실수하면 전체 층고와 연결 흐름에 문제가 생기므로
기초 개념을 확실히 잡아두면 현장에서 매우 큰 도움이 됩니다.
'3) AutoCAD & C# 자동화 > CAD 활용' 카테고리의 다른 글
| [계단 작업 note01] 일반계단03 – 단면도를 기반으로 평면도·모델링 완성하기 (0) | 2025.11.19 |
|---|---|
| [계단 작업 note01] 일반계단02 – 단면도 단순화 & 마감/골조 구분하기 (0) | 2025.11.19 |
| [CAD 활용] 계단 작업 (0) | 2025.11.19 |
| [CAD 활용] 기준점을 이용한 정확한 복사 — CTRL+SHIFT+C 활용하기 (0) | 2025.11.19 |
| [CAD 활용] MIRROR 시 문자 뒤집힘 방지 — 고급 속성 편집(ATTDEF) 사용법 (0) | 2025.11.19 |