이전 글(note02)에서 단면도 단순화 및 마감/골조 구분까지 마쳤습니다.
이제는 이 단면도를 실제 평면도에 반영하고,
마지막으로 계단 3D 모델링 형상까지 확인하는 단계입니다.
1️⃣ 단면도 기준으로 평면도 다시 작성하기
아래는 편집해둔 단면도입니다.
이 단면도의 길이(장변)가 조금씩 어긋나 있어 먼저 수정이 필요합니다.

✔ 장변 불일치 수정
초록색 구름 표시 부분이 장변 길이가 안 맞는 구간이며,
이는 계단참이 연창 쪽으로 약 100mm 나가 있는 형상이기 때문입니다.

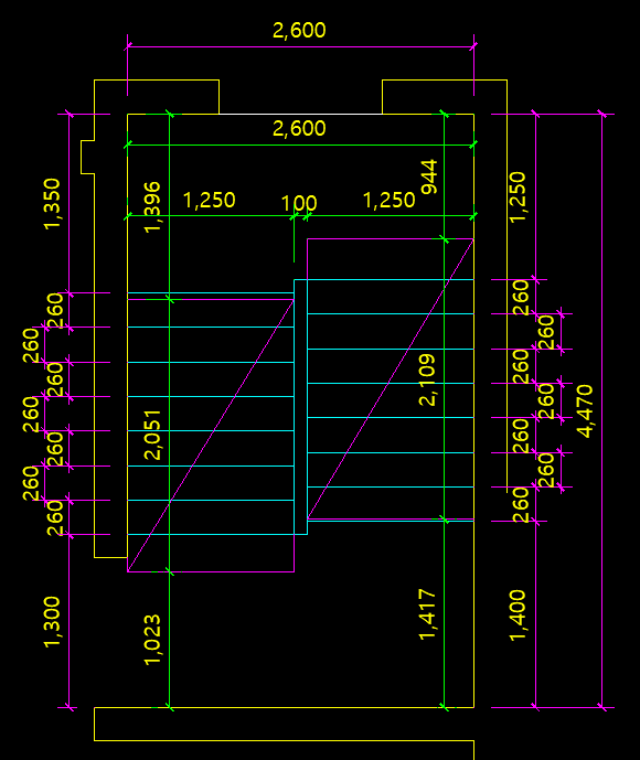
이 수정을 기준으로 평면도를 다시 작성하면 아래처럼 됩니다.
2️⃣ 평면도 완성 – 챌판 위치 & 슬래브 위치 표시

평면도 구성 요소
- 선홍색 치수선 → 계단 챌판(단높이) 이 놓이는 위치
- 초록색 치수선 → 슬래브(콘크리트면) 의 실제 위치
- 단면도 데이터와 1:1로 연결됨
단면도에서 확인한 정보를 평면도로 정확히 내려야
계단의 단높이·단폭·경사선이 모두 일치하게 됩니다.
3️⃣ 평면도 + 단면도 기반으로 계단 모델링
위의 평면도와 단면도를 기반으로 3D 모델링을 하면 아래와 같은 계단 형상이 나옵니다.

치수도 함께 입력해보면
단면도에서 확인한 100mm 차이 구간이 모델링에서도 정확히 표현된 것을 볼 수 있습니다.
이 구간은 아파트 계단 구조에서
연창이 연결되는 방향으로 계단참이 밀려 나온 형태이며, 실제 시공에서도 매우 흔한 구조입니다.
4️⃣ 계단을 아래에서 바라본 모습

- 챌판·슬래브 결합
- 연창부 돌출
- 마감 두께 반영
등이 실제 구조물과 동일하게 나타나는 모습입니다.
🎉 마무리
이번 note03에서는
- 단면도 수정 → 평면도 작성
- 평·단면도 기반 모델링
까지 이어지는 계단 작업의 핵심 흐름을 정리했습니다.
이 작업 방식은
건축 → 구조 → 형틀 도면 → 실측 → 시공
전체 과정에서 매우 중요하며,
특히 연창·단높이·슬래브 위치가 혼동되기 쉬운 현장에서 큰 도움이 됩니다.
'3) AutoCAD & C# 자동화 > CAD 활용' 카테고리의 다른 글
| 아파트 기준층 먹도면 만들기 (AutoCAD 실무) (0) | 2025.11.22 |
|---|---|
| 계단 모델링 (0) | 2025.11.21 |
| [계단 작업 note01] 일반계단02 – 단면도 단순화 & 마감/골조 구분하기 (0) | 2025.11.19 |
| [계단 작업 note01] 일반 계단의 기본 구조 이해하기 – 일반계단01 (0) | 2025.11.19 |
| [CAD 활용] 계단 작업 (0) | 2025.11.19 |