직선 램프는 구조가 단순하다고 했습니다.
그렇다면 곡선 램프는 어떨까?
결론부터 말하면,
곡선 램프는 직선보다 훨씬 더 많은 요소를 고려해야 한다.
1️⃣ 곡선 램프의 법적 경사도
- 곡선 램프의 최대 경사율은 14% 이하
- 즉, 1m 이동 시 140mm 이상 상승하면 안 된다

직선 램프보다 더 완만한 경사를 요구합니다.
차량의 회전 + 경사 복합부하가 있기 때문입니다.
2️⃣ 도면 구성 — 평면 / 횡단면 / 종단면
아래와 같은 평면도가 있습니다.
여기서 중요한 것은 종단면도가 어떤 단면(A? B?)을 기준으로 작성되었는가입니다.
대부분 램프는 중앙을 지나가는 B단면으로 종단면도를 작성하지만,
이번 도면은 A단면을 기준으로 작성되어 있습니다.
이런 도면이 의외로 현장에서 자주 등장합니다.

3️⃣ 곡선 램프의 핵심 — 작업점(센터포인트)
직선 램프와 가장 크게 다른 점이 바로 작업 중심점입니다.
아래와 같은 곡선의 중심점(= 원의 중심,곡선의 기준점)이 존재하며
곡선 램프 전체 형상을 결정하는 핵심 포인트가 됩니다.
이 작업점을 기준으로:
- 벽체 위치
- 보 설치
- 경사슬래브 조정
- 레벨값 해석
이 모든 것이 달라지므로 매우 중요합니다.

4️⃣ 종단면도가 정확한가? (A단면 기준 체크)
우선 종단면도가 A단면 기준으로 제대로 작성되었는지 확인합니다.

영상 참고
🔗 https://youtu.be/bj1yzM83LJ0
확인 결과:
오차 1~3mm 정도 → 도면은 비교적 정확하게 작성됨
이 정도면 현장용 도면으로는 매우 양호한 수준입니다.
5️⃣ 작업 도면 만들기 — 슬래브 두께 먼저 확인
아래 두 영상은 작업 도면을 만드는 과정입니다.
🔗 https://youtu.be/-VZrq9_EZFk
🔗 https://youtu.be/Ukxa5XiS-lY
중간에 램프 슬래브 두께가 다른 구간을 발견해
다시 작업을 하기도 했습니다. (일람표 미참조 상태에서 기본값만 보고 작업)
곡선 램프는 구간별 슬래브 두께가 바뀌는 경우도 있어
작업 전에 무조건 확인해야 합니다.
6️⃣ 문제 영역 — 곡선 램프 하부 벽체
아래 구름표기 부분을 보면 하부 벽체가 있습니다.
이 벽체는 직선 램프처럼 단순하지 않습니다.
왜냐하면…

곡선 + 경사 두 요소가 동시에 작용하기 때문입니다.
그래서 이 벽체의 실제 높이(레벨값)는 일정하지 않고
‘곡선 이동 방향(호 방향)’에 따라 변합니다.
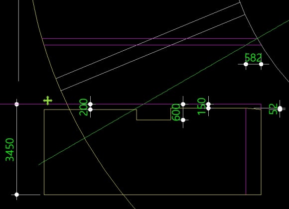
7️⃣ 레벨값 추출 — 녹색 해치 부분이 핵심
문제의 핵심 부분이 바로 아래의 녹색 해치 영역입니다.

이 구간은
- 단순 평행벽도 아니고
- 단순 직선 경사도 아니며
- 곡선의 반지름(R) 방향 기준으로 변화합니다.
따라서 벽체의 상·하부 레벨값이 서로 다르게 나옵니다.
레벨값을 직접 추출해 보면…
영상 참고
🔗 https://youtu.be/ZlwOAI4vrqM
결과값:
약 52mm 레벨 차이가 발생
이 값은 벽체 상단과 하단이 아니라
벽체의 ‘곡선 진행 방향상 서로 다른 두 지점의 레벨 차이’입니다.

즉,
벽체는 한 장이지만,
곡선 경사 때문에 레벨이 일정하지 않다.
이 구조적 특성 때문에
곡선 램프는 직선 램프보다 디테일 작업이 훨씬 더 까다롭습니다.
결론 — 곡선 램프는 직선보다 난이도가 훨씬 높다
정리해보면:
- 직선은 경사도만 보면 되지만
- 곡선 램프는 경사 + 곡률(곡선 중심점) 을 모두 봐야 한다
- 단면도 기준점(A 또는 B)이 매우 중요
- 벽체는 곡선 진행 방향 따라 레벨이 달라진다
- 레벨 차이는 실제 슬래브 시공 정확도에 직접 영향
- 단순 도면만 보고 작업하면 큰 오류 발생 가능
직선 램프는 단순하다면,
곡선 램프는 생각보다 알아야 할 것이 너무 많은 구조물입니다.
다음 글에서는 곡선 램프의 더 깊은 부분을 다뤄보겠습니다.
'1) 건축 현장 실무 > 골조 시공 기본기' 카테고리의 다른 글
| 현장에서 바로 쓰는 램프 만들어 보기 (0) | 2025.11.21 |
|---|---|
| 곡선 램프 해석의 핵심 개념 정리 (0) | 2025.11.21 |
| 램프_직선 — 레벨값 찾아내기 (0) | 2025.11.20 |
| 램프_직선 — 직선 램프 시공에서 반드시 알아야 할 핵심 정리 (0) | 2025.11.20 |
| 램프(RAMP) — 시공 시 반드시 알아야 할 기본 정리 (0) | 2025.11.20 |