(램프 단면도와 평면도 일치시키는 방법)
이번 글에서는 램프 평면도와 단면도에서 레벨값을 정확히 찾아내는 방법을 정리해 보겠습니다.
실제 현장에서 실수하기 가장 쉬운 영역이며,
설계 오류가 종종 섞여 있는 파트라 반드시 체크가 필요합니다.
1️⃣ 먼저, 기본 도면 구성부터 확인하기
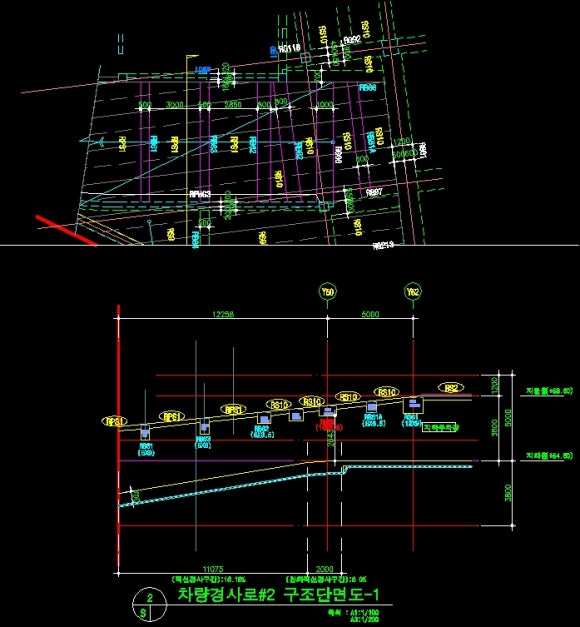
주어진 램프 도면은 아래와 같이 세 가지가 한 파일에 포함되어 있습니다.
- 평면도
- 횡단면도
- 종단면도



횡단면도는 램프의 짧은 방향 절단,
종단면도는 램프의 긴 방향 절단입니다.
2️⃣ 평면도와 단면도의 불일치
파일을 열어보면 다음과 같은 문제가 있습니다.
평면도의 경사 슬래브 해치가
종단면도의 경사 완료 지점과 맞지 않는다.

즉, 단면도의 경사 슬래브 ‘종료점’ 표기가 잘못된 상태였습니다.
아래 영상에서도 확인됩니다.
🔗 https://youtu.be/0rrqiTPvLzs
따라서 평면도 작업 전에 단면도 오류를 수정하는 것이 필수!
3️⃣ 지하층 SL+0 값부터 기준 잡기
단면도에서 확인한
SL+0 = (#54.80)
이 값이 모든 램프 레벨의 기준점이 됩니다.
즉, 모든 레벨값은 SL+0을 기반으로 계산됩니다.
4️⃣ 램프 경사슬래브에서 보(Beam) 레벨 먼저 정리
종단면도에는 램프 슬래브를 따라
여러 개의 보(RAB, RAG, RB 등)가 걸쳐 있습니다.
우선 아래와 같이 경사 진행 방향에서 보의 레벨값을 정리합니다.
🔗 https://youtu.be/DHgj0nPozWo
정리 후 예시는 다음과 같습니다.
- 보 하단 레벨 SL+xxxx
- 램프 진행 방향 기준 값 증가
- 경사 슬래브 두께 고려
5️⃣ 중요한 포인트 — “종단 방향이 아닌 보(녹색 표시된 보)”
램프 설계에서 흔히 발생하는 오류가 하나 있습니다.
바로,
종단 방향이 아닌 보(斜방향 보)의 양 끝 레벨이 다르다는 사실을 도면에서 빠뜨리는 경우
그래서 이번 교육용 도면은 의도적으로 문제가 있는 도면을 사용했습니다.
아래 보처럼 중앙에서 잘랐을 때, 색을 바꾼 보 하나를 기준으로 보겠습니다.
6️⃣ 녹색 보의 양쪽 레벨값이 같은가? → 아니다!
보 하나지만, 경사 방향에 따라 양 끝 레벨값이 다르게 나옵니다.
영상 참고:
🔗 https://youtu.be/2C3fJMkxWN8
도출된 레벨값:
- 시작점: SL+2254
- 끝점: SL+2343
둘의 차이는 89mm
즉,
보는 하나지만, 경사 방향 때문에 양 끝 레벨이 달라진다.
이 차이(= 89mm)가 있어야
슬래브 거푸집 작업 시 정확한 경사율을 만들 수 있다.

7️⃣ 또 다른 보의 레벨값 찾기
두 번째 보도 같은 방식으로 확인합니다.
🔗 https://youtu.be/ZuEQNKvyxWY
결과:
- 양 끝 레벨값이 서로 다름
- 단면 방향(횡단)과 직각이 아닌 보들은 모두 같은 방식으로 계산해야 함

8️⃣ 정리 — 어떤 보들이 레벨값이 달라지는가?
✔ 레벨 차이가 생기는 보
- 램프 종단 방향과 평행하지 않은 보
- 즉, 경사 방향과 각도가 있을 때
✔ 레벨 차이가 생기지 않는 보
- 램프 경사 진행과 직각 방향(= 횡단면 방향)
- 이 경우 보의 양쪽 레벨은 동일해야 한다
결론
램프 레벨값을 정확히 찾기 위해서는 반드시 아래 순서를 따라야 합니다.
- SL+0 기준값 확인
- 종단면도와 평면도의 경사 종료 지점 일치 여부 체크
- 경사슬래브 위에 위치한 보들의 하단레벨 먼저 정리
- 종단 방향이 아닌 보의 양쪽 레벨값 차이를 계산
- 도면에서 자동으로 표시되지 않는 레벨 오류 직접 검토
특히 “보는 하나지만, 양 끝 레벨은 서로 다르다는 것”은
현장에서 가장 많이 놓치는 부분입니다.
'1) 건축 현장 실무 > 골조 시공 기본기' 카테고리의 다른 글
| 곡선 램프 해석의 핵심 개념 정리 (0) | 2025.11.21 |
|---|---|
| 곡선 램프의 원리와 레벨값 찾기 (0) | 2025.11.21 |
| 램프_직선 — 직선 램프 시공에서 반드시 알아야 할 핵심 정리 (0) | 2025.11.20 |
| 램프(RAMP) — 시공 시 반드시 알아야 할 기본 정리 (0) | 2025.11.20 |
| 계단에 대한 정리 (개인적인 생각) (0) | 2025.11.20 |